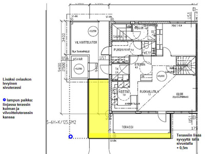
Niin, tuossa pari päivää sitten kertoilin vielä viimehetken muutoksista, mitä tehtiin asunnon ulkopuolelle. Päätettiin laajentaa terassia sillälailla, että etu- ja takaterassi menevät yhteen. Samalla syvennetään takaterassia hieman, niin mahtuu paremmin liikkumaan.
Tässäpä pikapiirros suunnitelmasta

Tässä vähän alustavasti autonvakuutuksia katellut, niin siihen tulokseen tulin, että USAssa onkin halvat vakuutukset autolle. Minä kun luulin, että täällä on kalliit verrattuna esim. Suomeen. Liikennevakuutus ja täyskasko ovat about tuplasti kalliimpia Suomen maalla vaikka olis bonuksiakin. Irtaimistovakuutus taas näyttäis olevan toisinpäin. Pitänee vielä käydä ihan toimistoissa kattelemassa tarjouksia, sillä luulen että nuo nettihommat on jonkinasteista rahastusta.
Asunnossa on ennakkotarkastus 19. päivä lokakuuta. Vielä en tiedä, ehdinkö siihen mukaan. Lopputarkastus ja avaimet käteen on seuraavan viikon perjantaina ja muutto voi alkaa (tosin omat rojut tulee joskus marraskuun puolella)
